Tutaj jesteś: Projekty hal
/ Hale stalowe
Hala stalowa nieocieplona o rozpiętości 18,00 m
kategoria:
Hale stalowe
- Typ: WB-5301-1
- Powierzchnia użytkowa (netto): 676,00 m²
- Powierzchnia zabudowy: 690,90 m²
- Kubatura: 4854,10 m³
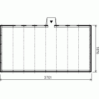
- Długość x Szerokość: 37,01 x 18,76 m
- Typ dachu: Dwuspadowy
- Wysokość: 8,17 m
Projekt hali stalowej. Obiekt parterowy, bez podpiwniczenia, z niskim dwuspadowym dachem, o uniwersalnym przeznaczeniu.
Technologia:
Konstrukcja nośna hali - ramy stalowe w rozstawie 4,50 m; ściany - blacha stalowa fałdowa.
Dodaj komentarz:
Wasze komentarze:
Aktualnie brak komentarzy
Warning: include(./inc/moduly/formularzOgolny.php) [function.include]: failed to open stream: No such file or directory in /inc/artykul.php on line 188
Warning: include(./inc/moduly/formularzOgolny.php) [function.include]: failed to open stream: No such file or directory in /inc/artykul.php on line 188
Warning: include(./inc/moduly/formularzOgolny.php) [function.include]: failed to open stream: No such file or directory in /inc/artykul.php on line 188
Warning: include() [function.include]: Failed opening './inc/moduly/formularzOgolny.php' for inclusion (include_path='.:/:/usr/local/php5/lib/pear') in /inc/artykul.php on line 188
PROJEKT I WYKONANIE: www.themedia.pl
G WNA /
O NAS /
REKLAMA /
POLITYKA PRYWATNO CI /
KONTAKT
Copyright © 2010 by www.e-hale.pl Wszelkie prawa zastrze one
Copyright © 2010 by www.e-hale.pl Wszelkie prawa zastrze one









