Tutaj jesteś: Projekty hal
/ Hale stalowe
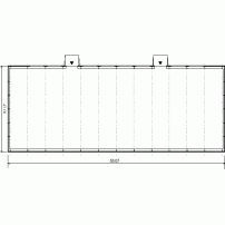
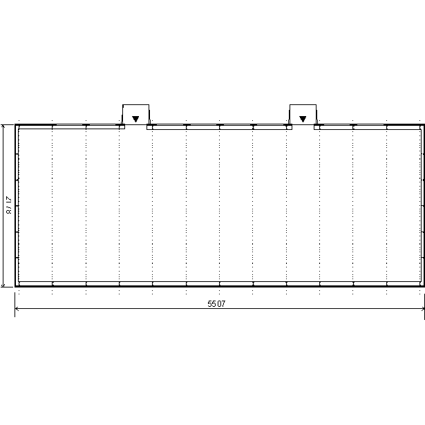
Hala stalowa nieocieplona o rozpiętości 21,00 m
kategoria:
Hale stalowe
- Typ: WB-5305
- Powierzchnia użytkowa (netto): 1175,00 m²
- Powierzchnia zabudowy: 1206,00 m²
- Kubatura: 7655,00 m³
- Długość x Szerokość: 55,07 x 21,78 m
- Typ dachu: Dwuspadowy
- Wysokość: 7,36 m
Projekt hali stalowej. Obiekt wolno stojący, parterowy, bez podpiwniczenia, z niskim dwuspadowym dachem, o uniwersalnym przeznaczeniu.
Technologia:
Stopy fundamentowe - żelbetowe.
Konstrukcja nośna hali - ramy stalowe w rozstawie 4,50 m.
Poszycie - blacha stalowa fałdowa powlekana T-55x188.
Dodaj komentarz:
Wasze komentarze:
Aktualnie brak komentarzy
Warning: include(./inc/moduly/formularzOgolny.php) [function.include]: failed to open stream: No such file or directory in /inc/artykul.php on line 188
Warning: include(./inc/moduly/formularzOgolny.php) [function.include]: failed to open stream: No such file or directory in /inc/artykul.php on line 188
Warning: include(./inc/moduly/formularzOgolny.php) [function.include]: failed to open stream: No such file or directory in /inc/artykul.php on line 188
Warning: include() [function.include]: Failed opening './inc/moduly/formularzOgolny.php' for inclusion (include_path='.:/:/usr/local/php5/lib/pear') in /inc/artykul.php on line 188
PROJEKT I WYKONANIE: www.themedia.pl
G WNA /
O NAS /
REKLAMA /
POLITYKA PRYWATNO CI /
KONTAKT
Copyright © 2010 by www.e-hale.pl Wszelkie prawa zastrze one
Copyright © 2010 by www.e-hale.pl Wszelkie prawa zastrze one









