Tutaj jesteś: Projekty hal
/ Hale stalowe
Hala stalowa ocieplona o rozpiętości 18,00 m
kategoria:
Hale stalowe
- Typ: WB-5312
- Powierzchnia użytkowa (netto): 1090,30 m²
- Powierzchnia zabudowy: 1130,00 m²
- Kubatura: 7185,00 m³
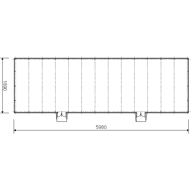
- Długość x Szerokość: 59,80 x 18,90 m
- Typ dachu: Dwuspadowy
- Wysokość: 7,15 m
Projekt hali stalowej. Hala ocieplona z lekką obudową przeznaczona dla obiektów zamkniętych magazynowo-składowych i innych o podobnym przeznaczeniu.
Technologia:
Fundamenty - stopy żelbetowe wylewane.
Ściany - z blachy fałdowej na ryglach stalowych.
Konstrukcja - ramy stalowe z dwuteowników PE 240 na słupach z dwuteownika PE 330.
Słupy ścian szczytowych z dwuteownika PE 140.
Pokrycie - z blachy fałdowej na płatwiach stalowych.
Dodaj komentarz:
Wasze komentarze:
Aktualnie brak komentarzy
Warning: include(./inc/moduly/formularzOgolny.php) [function.include]: failed to open stream: No such file or directory in /inc/artykul.php on line 188
Warning: include(./inc/moduly/formularzOgolny.php) [function.include]: failed to open stream: No such file or directory in /inc/artykul.php on line 188
Warning: include(./inc/moduly/formularzOgolny.php) [function.include]: failed to open stream: No such file or directory in /inc/artykul.php on line 188
Warning: include() [function.include]: Failed opening './inc/moduly/formularzOgolny.php' for inclusion (include_path='.:/:/usr/local/php5/lib/pear') in /inc/artykul.php on line 188
PROJEKT I WYKONANIE: www.themedia.pl
G WNA /
O NAS /
REKLAMA /
POLITYKA PRYWATNO CI /
KONTAKT
Copyright © 2010 by www.e-hale.pl Wszelkie prawa zastrze one
Copyright © 2010 by www.e-hale.pl Wszelkie prawa zastrze one









