Hala stalowa ocieplona o rozpiętości 21,00 m
- Typ: WB-5306
- Powierzchnia użytkowa (netto): 1175,00 m²
- Powierzchnia zabudowy: 1206,00 m²
- Kubatura: 7755,00 m³
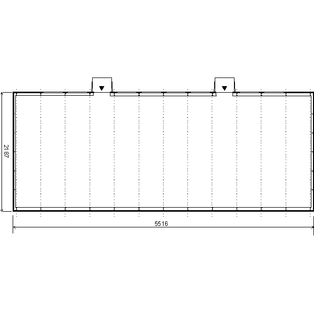
- Długość x Szerokość: 55,16 x 21,87 m
- Typ dachu: Dwuspadowy
- Wysokość: 7,47 m
Projekt hali stalowej. Obiekt wolno stojący, parterowy, bez podpiwniczenia, z niskim dwuspadowym dachem, o uniwersalnym przeznaczeniu. Konstrukcja hali stalowa. Dach kryty płytami warstowymi. Wentylacja grawitacyjna w dachu.
Obiekt jest zaprojektowany w "C" klasie odporności ogniowej i zalicza się do III kat. niebezpieczeństwa pożarowego.
Technologia:
Stopy fundamentowe - żelbetowe.
Konstrukcja nośna hali - ramy stalowe w rozstawie co 4,50 m. Ramy zaprojektowano jako bezprzegubowe o słupach zamocowanych w stopach fundamentowych. Nachylenie dźwigara ram: 20%.
Poszycie - z płyt warstwowych z wkładką ze styropianu lub poliuretanu: dla ścian 10 cm, dla dachu 15 cm.
Strefa obciążenia śniegiem: II.
Strefa obciążenia wiatrem: I.
Dodaj komentarz:
Wasze komentarze:
Aktualnie brak komentarzy
Warning: include(./inc/moduly/formularzOgolny.php) [function.include]: failed to open stream: No such file or directory in /inc/artykul.php on line 188
Warning: include(./inc/moduly/formularzOgolny.php) [function.include]: failed to open stream: No such file or directory in /inc/artykul.php on line 188
Warning: include(./inc/moduly/formularzOgolny.php) [function.include]: failed to open stream: No such file or directory in /inc/artykul.php on line 188
Warning: include() [function.include]: Failed opening './inc/moduly/formularzOgolny.php' for inclusion (include_path='.:/:/usr/local/php5/lib/pear') in /inc/artykul.php on line 188
Copyright © 2010 by www.e-hale.pl Wszelkie prawa zastrze one









